Strandnahe Eigentumswohnung mit schönem Grundstücksanteil, Terrasse und PKW Stellplatz
18211 Nienhagen, Wohnung zum Kauf
Kontaktdaten
-
NameFrau Sylvia Mai
-
FirmaDR. TASLER & PARTNER Immobilien-Projekt GmbH
-
AnschriftBarnstorfer Weg 48
18057 Rostock -
E-Mail
-
Telefon
-
Telefon
-
Mobil
-
Fax+49 381 5193347
Objektdaten
-
Objekt-ID4825Mai
-
ObjekttypWohnung
-
Adresse18211 Nienhagen
(M-V) -
LageOrtslage
-
Wohnfläche ca.51,29 m²
-
Balkon-/Terrassenfläche ca.5,86 m²
-
Gartenfläche ca.46 m²
-
Zimmer2
-
Schlafzimmer1
-
Wohn-Schlafzimmer1
-
Badezimmer1
-
Terrassen1
-
KücheEinbauküche
-
Wesentlicher EnergieträgerGas
-
Zustandgepflegt
-
Außenstellplatz1
-
Käuferprovisionsiehe Provisionshinweis
Die Käufermaklerprovision in Höhe von 3,57 % inkl. gesetzl. MwSt. ist mit Abschluss eines Kaufvertrages verdient und fällig. -
Hausgeld211,53 EUR
-
Kaufpreis259.000 EUR
Ausstattung / Merkmale
- ✓ Abstellraum
- ✓ Außenstellplatz
- ✓ Badewanne
- ✓ Balkon/Terrasse West
- ✓ Barrierefrei
- ✓ Einbauküche
- ✓ Fliesenboden
- ✓ Garten
- ✓ Kabel-/Sat-TV
- ✓ Seniorengerecht
- ✓ Tageslichtbad
- ✓ Terrasse
Energieausweis
-
EnergieausweistypVerbrauchsausweis
-
Ausstellungsdatum27.03.2018
-
Gültig bis26.03.2028
-
Baujahr lt. Energieausweis2012
-
Wesentlicher EnergieträgerGas
-
Endenergieverbrauch74,10 kWh/(m²·a)
Objektbeschreibung
Beschreibung
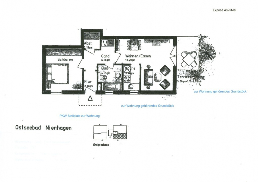
Wir bieten Ihnen hier eine gemütliche, strandnahe 2-Zimmer Eigentumswohnung mit einem geschützten kleinen Grundstück ausschließlich zur eigenen Nutzung, Wohnungeingang von außen, eine sehr gute Raumaufteilung sowie einem HWR/Abstellraum in der WE, gelegen in einem Mehrfamilienhaus mit nur zweieinhalb Geschossen in schöner ruhiger Lage – Anliegerstrasse mit Einfamilienhäsern.
Der zur Wohnung gehörende PKW Stellplatz befindet sich direkt vor Ihrer Haustür.
Über einen separaten Zugang gelangen Sie in diese gemütlich eingerichtete Wohnung mit zwei separat begehbaren Zimmern, eine funktionale Küche mit Einbauküche und Fenster, Badezimmer mit Fenster, Wanne und Duscharmaturen sowie Badmobiliar.
Die Wohnung ist sowohl als fester Wohnsitz als auch privates Feriendomizil bestens geeignet.
Sie ist komplett möbliert und ausgestattet und kann sofort bezogen werden.
Das gesamte Mobiliar kann verbleiben bzw. nach Absprache was gewünscht wird und ist kostenfrei, muss jedoch nicht übernommen werden.
Ausstattung
- 2-Zimmer-Terrassenwohnung mit überdachter West-Terrasse und schönem Grundstücksanteil – Sondernutzungsrecht
- ca. 51,29 m² Wohnfläche
- ca. 46 m² geschütztes Grundstück, mit einer Hecke eingefriedet
- Wohnzimmer mit Zugang zur Terrasse
- Küche mit Fenster und Einbauküche
- Bad mit Fenster, Badmobiliar
- pflegeleichte Fliesenböden
- Abstell-/Hauswirtschaftsraum in der Wohnung
- Abstellbox für Fahrräder auf dem Grundstück
- eigener PKW Stellplatz vor der Haustür
- gemeinschaftlicher Fahrradabstellraum
- die Wohnung wird mit dem kompletten Inventar (außer TV u. persönliches) verkauft, bzw. auch teilweise u. nach Absprache – keine zusätzlichen Kosten!
Sonstiges
Weitere detaillierte Informationen entnehmen Sie bitte dem ausführlichen Exposé 4825Mai, welches wir Ihnen auf Wunsch gerne zusenden.
Lage
Diese sehr schöne und ruhig gelegene Wohnung befindet sich in einem 1997 erbauten Mehrfamilienhaus in einer verkehrsberuhigten Sackgasse. In nur etwa 5 Minuten zu Fuß erreichen Sie den Ostseestrand mit seiner sehr schön angelegten Strandpromenade mit toller Gastronomie und Außensitzbereichen.
Im Ort befinden sich mehrere Restaurants, Gemeindehaus, ein neu entstandener EDEKA Markt, ein kleines gemütliches Geschäft und Café u.a. mit frischen Backwaren und Snacks, Ärzte (Allgemein- u. Zahnarztpraxis), ein Geldautomat, zwei Physiotherapien u.v.m..
Im Ostseebad Nienhagen befinden sich sehr aufwendig und liebevoll sanierte Villen, in den vergangenen Jahren neu erbaute Einfamilienhäuser sowie viele kleine grüne Oasen. Das Seebad Warnemünde, die Münsterstadt Bad Doberan, Seeheilbad Heiligendamm sowie das Ostseebad Kühlungsborn sind nur wenige km entfernt und auch mit dem Fahrrad auf den sehr gut ausgebauten Küstenradwegen gut erreichbar.
Die Hanse- und Universitätsstadt Rostock mit seinen vielen schönen Wohngebieten befindet sich nur etwa 13 km entfernt.
Kindergarten 200 m | Flughafen 45 km | Fernbahnhof 7 km | Autobahn 10 km | Bus 100 m | Einkaufsmöglichkeiten 100 m
18211 Nienhagen, Deutschland (auf Google Maps ansehen)















